Saltear navegación

CONDOMINIO LA RESERVA

AÑO PROYECTO 2023

AÑO FINALIZACIÓN en proceso de venta

UBICACIÓN City Bell Chico - Barrio Privado, City Bell, Buenos Aires, Argentina 

ARQUITECTOS Fernando Gianserra - Luis Gonzalo Lima

EMPRESA CONSTRUCTORA TST desarrolla

SUPERFICIE TERRENO 3940

SUPERFICIE PROYECTO 4000

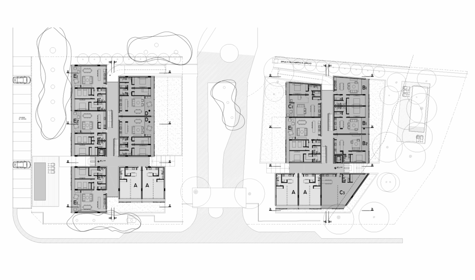
MEMORIA

2 edificios, 3 Niveles, 39 Departamentos totales

Unidades de 1, 2, 3 y 4 ambientes

Los parques que rodean a los edificios cuentan con áreas de esparcimiento, descanso y contemplación. Estos amplios jardines caracterizados por el verde en un diseño paisajístico único, abre nuevas perspectivas de interacción visual entre espacios interiores y exteriores. Un diálogo armónico y contemporáneo que permite repensar el sentido de residencia actual.

Los accesos peatonales a las viviendas se dan a través de un espacio común de tres alturas, con techo de vidrio y entrepisos metálicos semi transparentes configurando un conjunto de gran luminosidad y espacialidad.

La materialidad del conjunto está definida por la elección de materiales nobles, logrando de esta manera un lenguaje arquitectónico simple y contemporáneo. Los materiales elegidos para los exteriores de los edificios son: ladrillo visto, hormigón visto, hierro, vidrio y madera.